MONFALCONE Via Timavo Ufficio completamente ristrutturato a nuovo.

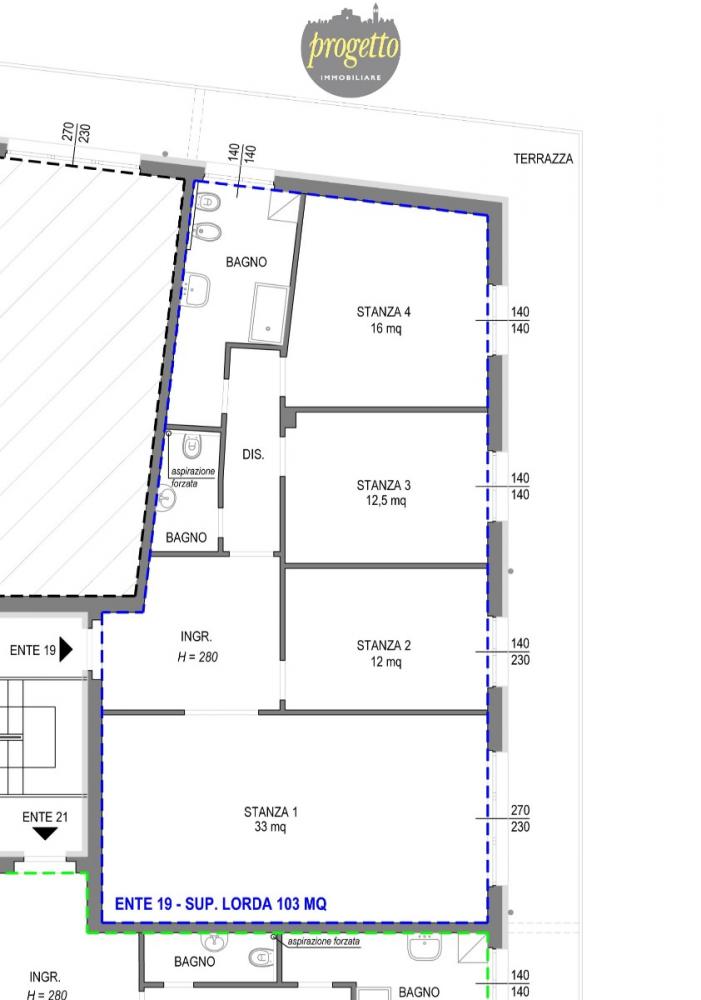
Via Timavo, in piccola palazzina di totali 4 unità, affittasi moderno UFFICIO di 103 mq sito al primo piano, totalmente ristrutturato a nuovo e composto da ingresso, 4 stanze, disimpegno, ripostiglio, doppi servizi e ampio terrazzo. Riscaldamento autonomo a metano, senza spese condominiali. L'immobile gode di due posti auto al piano terra, in corte interna. Classe energetica A2 (EPgl,nren 44.67 kWh/mq anno - EPgl,ren 0.07 kWh/mq anno). Adatto per studio o ente. € 1.800,00 mensili Per ricevere ulteriori informazioni o fissare un appuntamento per visionare l'immobile contattare telefonicamente, inviare una mail o passare c/o la ns. agenzia: SM PROGETTO IMMOBILIARE sas Via IX Giugno, 33 - 34074 MONFALCONE (GO) Tel. 0481 790204 - info@smprogettoimmobiliare.it

classe energetica A2

GALLERY

Ubicazione: Via Timavo
Riferimento: L-390/1
Contratto: affitto
Tipologia: ufficio
Catalogazione:
Mq: 103
Stato dell'immobile: ristrutturato

1.800 €

Condividi su: